Giải pháp thiết kế thang bộ ôm thang máy trong gia đình
Vị trí lắp đặt thang máy không chỉ phụ thuộc vào diện tích, thiết kế của ngôi nhà mà còn ảnh hưởng đến tính thẩm mỹ. Và thiết kế thang bộ ôm thang máy đang được rất nhiều gia đình lựa chọn do có thể tiết kiệm tối đa không gian và không làm ảnh hưởng đến kiến trúc ban đầu của ngôi nhà. Hãy theo dõi bài viết dưới đây để hiểu rõ hơn về thiết kế này.
1. Thiết kế thang bộ ôm thang máy
Lắp đặt thang máy trong lòng thang bộ được rất nhiều gia đình lựa chọn. Đây cũng là thiết kế phù hợp với những ngôi nhà hạn chế về diện tích, đảm bảo được tính thẩm mỹ cho ngôi nhà.
Ưu điểm
Tiết kiệm tối đa diện tích: Việc lắp đặt thang máy trong lòng thang bộ sẽ giúp tận dụng tối đa khoảng trống trong nhà, không cần tốn thêm diện tích lắp đặt.
Dễ dàng di chuyển khi dùng thang bộ: Nếu trong thiết kế nhà có sử dụng thang máy thì việc thiết kế thang bộ ôm thang máy sẽ giúp đội ngũ thi công bố trí được nhiều bậc thang hơn, giảm chiều cao mỗi bậc thang, giảm độ dốc giúp các thành viên trong gia đình dễ di chuyển.
Không tốn chi phí để làm tay vịn cho thang bộ: Với thiết kế thang bộ ôm thang máy, những người di chuyển bằng thang bộ vẫn có được sự an toàn mà không cần đến tay vịn. Do vậy, các gia chủ có thể cân nhắc để giải pháp này để tiết kiệm một khoản chi phí.
Nhược điểm
Ngôi nhà có thể mất đi ánh sáng tự nhiên nếu không biết cách chọn thiết kế thang máy phù hợp. Tuy nhiên, nhược điểm này có thể khắc phục dễ dàng thông qua việc lựa chọn những mẫu thang máy vách kính.
Bạn có thể tìm hiểu thêm ưu, nhược điểm của việc lắp thang máy trong nhà
2. Thiết kế thang máy và thang bộ nằm ngoài nhau
Phương án thiết kế hai loại thang nằm ngoài nhau cũng được ưa chuộng bởi nhiều chủ nhà. Cách bố trí này phù hợp hơn với những căn nhà có chiều sâu lớn, mặt tiền hẹp, thường là những căn nhà phố có diện tích bề ngang hạn chế.
Ưu điểm
- Giữ được độ sáng tự nhiên, lưu thông không khí cho ngôi nhà do khoảng không giếng trời không bị ảnh hưởng.
- Đảm bảo được tính thẩm mỹ và sự an toàn: Do thang máy đặt riêng biệt, phần tay vịn vẫn được lắp đặt bình thường tùy theo họa tiết, thiết kế mà chủ nhà thấy phù hợp.
- Thiết kế thang máy và thang bộ riêng biệt như hình cũng là một phương án bạn có thể lựa chọn khi lắp đặt
Nhược điểm
- Cầu thang bộ có độ dốc lớn hơn, tạo cảm giác khó khăn cho người di chuyển
- Cách thiết kế này không khả thi ở những công trình nhà cải tạo bởi khi lắp đặt thang máy sẽ cần rất nhiều công sức sửa chữa và thiết kế lại không gian.
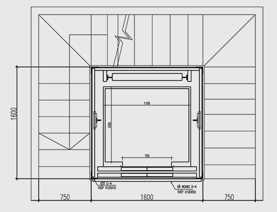
3. 1 số bản vẽ thiết kế thang máy và thang bộ



Có thể bạn quan tâm: bản vẽ thang máy không phòng máy
4. Sản phẩm thang máy Cibes thích hợp mọi vị trí trong gia đình
Là thương hiệu thang máy nhập khẩu đến từ Thụy Điển, Cibes cung cấp những sản phẩm thang máy với những ưu điểm vượt trội về kích cỡ và công nghệ không cần hố pit.
Thang máy Cibes có thiết kế tối ưu để tiết kiệm tối đa không gian cho ngôi nhà cùng với đó là thiết kế không hố pit hoặc hố pit rất nhỏ (chỉ 6cm). Do vậy, chủ nhà sẽ tiết kiệm được chi phí và thời gian lắp đặt bởi sản phẩm của Cibes không cần xây giếng thang, không cần làm phòng máy.
Lắp đặt thang Cibes không cần đào hố pit giúp tiết kiệm tối đa thời gian và chi phí cho chủ nhà.
Ngoài ra, thang máy Cibes có thể được lắp đặt linh hoạt với không gian nhỏ hẹp, diện tích thông thủy chỉ từ 1m2, giúp tiết kiệm diện tích cho các căn nhà phố. Bên cạnh đó, gia chủ cũng có nhiều sự lựa chọn về vị trí lắp đặt thang máy khi sử dụng sản phẩm thang máy Cibes.
Dù lắp đặt trong nhà hay ngoài trời, thiết kế tinh tế của thang máy sẽ không làm ảnh hưởng đến cảnh quan ngôi nhà.
Có thể bạn quan tâm: thông tin về thang máy gia đình của Cibes
Nếu bạn vẫn đang băn khoăn về vị trí lắp đặt thang máy hay chọn loại thang máy nào cho phù hợp, hãy liên hệ ngay với Cibes để nhận được tư vấn và hỗ trợ tốt nhất.
- Hotline: 1800 1754 - 0899.503.838
- Hà Nội: Phòng 303, tầng 3, tòa nhà HITC, 239 Xuân Thủy, Cầu Giấy, Hà Nội
- Hồ Chí Minh: B1-00.02, Tòa nhà Sarimi, Khu đô thị Sala, Quận 2, HCM
Đánh giá và bình luận
0 đánh giá
Bạn có nhận xét gì về bài viết này
Bằng cách đăng ký các thông tin trên, bạn đã đồng ý cho phép Công ty TNHH Cibes Lift Việt Nam thu thập, sử dụng, và xử lý dữ liệu cá nhân theo các quy định trong Chính Sách Bảo Mật của Công ty.